Schnellzüge K.P.E.V. (2)
- Санёк-69
- Повідомлень: 437
- З нами з: 10 лютого 2017, 13:05
- Имя: Александр
- Звідки: Житомир
- Мой типоразмер: НО/ТТ
- Has thanked: 1407 times
- Been thanked: 400 times
Schnellzüge K.P.E.V. (2)
Продолжение.
Начало тут: viewtopic.php?f=24&t=1731
С появлением скорых поездов, дальние переезды занимали меньше времени, и были не так утомительны для пассажиров. И всё же, для очень длительных поездок, особенно по маршрутам ночных расписаний, вагоны с сидячими местами не могли обеспечить должного комфорта. Для этого требовался новый тип вагонов, в которых пассажиры могли бы полноценно выспаться во время поездки.
Поначалу в Германии не было спальных вагонов собственных конструкций, и в составах первых немецких скорых поездов ходили 2-х, позже 3-осные, спальники CIWL:
На определённых этапах, почти все управления земельных дорог пробовали свои силы в постройке собственных спальных вагонов, но эти попытки ограничивались единичными экземплярами, так и не имевшими серийного продолжения.
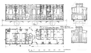
Единственным исключением стала Пруссия. Первый проект двухосного прусского спального вагона был принят к производству в 1876 году:
К сожалению, нигде не нашел изображений с интерьером этого вагона. Скорее всего, он мог соответствовать конструкции 2-осныхспальников CIWL того времени, в которых купе располагались вдоль вагона, а одноместные кресла со столиком между ними, трансформировались в спальное место, по типу того, как это осуществляется на нижних боковых местах в плацкартных вагонах:
Первый проект оказался успешным, и с 1881 года начался выпуск новых типов 3-осных спальных вагонов KPEV, с поперечным расположением купе. Нижние полки цельной конструкции, верхние полки были двух типов, в одном случае они одновременно выполняли функцию спинки нижней полки, и при необходимости поднимались вверх, во втором случае фиксировались на стенке в сложенном состоянии, и при необходимости опускались вниз по тому же принципу, как и верхние полки в современных вагонах:
В 1884 году KPEV отказалась от использования спальных вагонов CIWL/ISG, и с 1885 года заказала постройку ещё одного нового типа 3-осных вагонов (как выглядел интерьер этих вагонов, неизвестно):
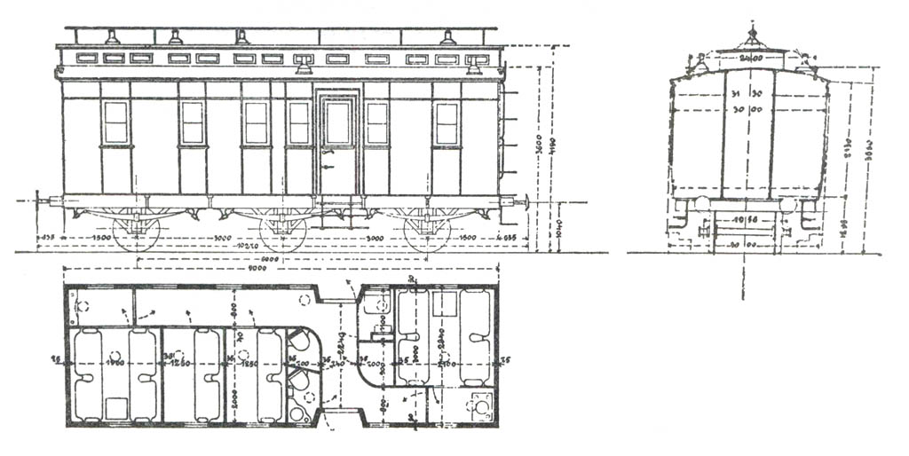
С 1886 начался выпуск различных конструкций 4-осных спальных вагонов с открытыми тамбурами. Характерной особенностью данных вагонов было наличие сквозного коридора вдоль одной стороны, и два туалета в концах вагона. Купе 2-х и 4-местные. 2-местые купе имели между собой дополнительное сообщение через небольшие двери в перегородке. По ситуации, 4-местные купе могли использоваться как купе обычных пассажирских вагонов, т.е., только с сидячими местами. Билет на сидячее место в 4-местном купе такого вагона был самым дешевым. Спальное место на верхней полке в 4-местном купе стоило дороже. Ещё дороже стоило спальное место на нижней полке. В свою очередь, спальные места в 2-местных купе стоили дороже, чем спальные места в 4-местных купе. И самым дорогим был билет, позволявший занимать одному пассажиру 2-местное купе.
Первые попытки постройки прусских спальных вагонов с закрытыми тамбурами относятся к 1889 году, когда на нескольких вагонах ранней постройки открытые тамбуры переделали в закрытые:
Серийный выпуск спальных вагонов KPEV с закрытыми тамбурами начался в 1890 году. Это была небольшая партия, вышедшая в период 1890-1891, из пяти вагонов, с нехарактерной для прусских вагонов бочкообразной крышей:
К сожалению, жизненный путь спальных вагонов KPEV, выпущенных до 1892 года, оказался недолгим. До 1906 года все эти вагоны подверглись различным переделкам. Какие-то из них были перестроены в салоны, какие-то в измерительные или санитарные, или в обычные пассажирские вагоны.
Начало тут: viewtopic.php?f=24&t=1731
С появлением скорых поездов, дальние переезды занимали меньше времени, и были не так утомительны для пассажиров. И всё же, для очень длительных поездок, особенно по маршрутам ночных расписаний, вагоны с сидячими местами не могли обеспечить должного комфорта. Для этого требовался новый тип вагонов, в которых пассажиры могли бы полноценно выспаться во время поездки.
Поначалу в Германии не было спальных вагонов собственных конструкций, и в составах первых немецких скорых поездов ходили 2-х, позже 3-осные, спальники CIWL:
На определённых этапах, почти все управления земельных дорог пробовали свои силы в постройке собственных спальных вагонов, но эти попытки ограничивались единичными экземплярами, так и не имевшими серийного продолжения.
Единственным исключением стала Пруссия. Первый проект двухосного прусского спального вагона был принят к производству в 1876 году:
К сожалению, нигде не нашел изображений с интерьером этого вагона. Скорее всего, он мог соответствовать конструкции 2-осныхспальников CIWL того времени, в которых купе располагались вдоль вагона, а одноместные кресла со столиком между ними, трансформировались в спальное место, по типу того, как это осуществляется на нижних боковых местах в плацкартных вагонах:
Первый проект оказался успешным, и с 1881 года начался выпуск новых типов 3-осных спальных вагонов KPEV, с поперечным расположением купе. Нижние полки цельной конструкции, верхние полки были двух типов, в одном случае они одновременно выполняли функцию спинки нижней полки, и при необходимости поднимались вверх, во втором случае фиксировались на стенке в сложенном состоянии, и при необходимости опускались вниз по тому же принципу, как и верхние полки в современных вагонах:
В 1884 году KPEV отказалась от использования спальных вагонов CIWL/ISG, и с 1885 года заказала постройку ещё одного нового типа 3-осных вагонов (как выглядел интерьер этих вагонов, неизвестно):
С 1886 начался выпуск различных конструкций 4-осных спальных вагонов с открытыми тамбурами. Характерной особенностью данных вагонов было наличие сквозного коридора вдоль одной стороны, и два туалета в концах вагона. Купе 2-х и 4-местные. 2-местые купе имели между собой дополнительное сообщение через небольшие двери в перегородке. По ситуации, 4-местные купе могли использоваться как купе обычных пассажирских вагонов, т.е., только с сидячими местами. Билет на сидячее место в 4-местном купе такого вагона был самым дешевым. Спальное место на верхней полке в 4-местном купе стоило дороже. Ещё дороже стоило спальное место на нижней полке. В свою очередь, спальные места в 2-местных купе стоили дороже, чем спальные места в 4-местных купе. И самым дорогим был билет, позволявший занимать одному пассажиру 2-местное купе.
Первые попытки постройки прусских спальных вагонов с закрытыми тамбурами относятся к 1889 году, когда на нескольких вагонах ранней постройки открытые тамбуры переделали в закрытые:
Серийный выпуск спальных вагонов KPEV с закрытыми тамбурами начался в 1890 году. Это была небольшая партия, вышедшая в период 1890-1891, из пяти вагонов, с нехарактерной для прусских вагонов бочкообразной крышей:
К сожалению, жизненный путь спальных вагонов KPEV, выпущенных до 1892 года, оказался недолгим. До 1906 года все эти вагоны подверглись различным переделкам. Какие-то из них были перестроены в салоны, какие-то в измерительные или санитарные, или в обычные пассажирские вагоны.
- Санёк-69
- Повідомлень: 437
- З нами з: 10 лютого 2017, 13:05
- Имя: Александр
- Звідки: Житомир
- Мой типоразмер: НО/ТТ
- Has thanked: 1407 times
- Been thanked: 400 times
Schlafwagen K.P.E.V.
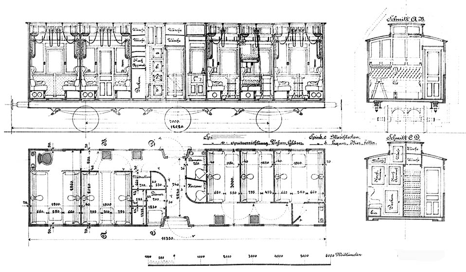
С 1892 года конструкции спальных вагонов KPEV, по внешним параметрам, стали идентичны выпускавшимся в то время пассажирским D-Zug-Wagen_нам (с закрытыми тамбурами, переходы между вагонами защищены сильфонами). Как и предшествующие типы, спальные вагоны образца с 1892 года, имели 2-х и 4-местные купе. Верхние полки одновременно являлись спинками нижних полок, при необходимости трансформировались в верхнее спальное место
С 1897 года спальные вагоны выпускались только с 2-местными купе:
В 1900 году появился первый 6-осный спальный вагон. Это был единичный экземпляр, представленный Van der Zypen & Charlier на Парижской выставке того года:
С введением новых стандартов дизайна для вагонов скорых поездов т.н. "Прусского типа", с 1902 года спальные вагоны приобрели те же внешние черты:
С 1904 года все спальные вагоны KPEV выпускались только в 6-осном исполнении:
По сравнению с 4-осными предшественниками, поездки в таких вагонах стали намного комфортнее. 6-осный вагон меньше раскачивался, и имел более плавный ход.
Большинство вагонов-ресторанов, выпущенных после 1905 года, также были 6-осными.
В период 1906-1907г.г. было построено небольшое количество 6-осных D-Zug-Wagen_нов. Но более высокая стоимость таких вагонов себя не оправдала, и в дальнейшем, от производства 6-осных пассажирских вагонов решили отказаться.
С 1897 года спальные вагоны выпускались только с 2-местными купе:
В 1900 году появился первый 6-осный спальный вагон. Это был единичный экземпляр, представленный Van der Zypen & Charlier на Парижской выставке того года:
С введением новых стандартов дизайна для вагонов скорых поездов т.н. "Прусского типа", с 1902 года спальные вагоны приобрели те же внешние черты:
С 1904 года все спальные вагоны KPEV выпускались только в 6-осном исполнении:
По сравнению с 4-осными предшественниками, поездки в таких вагонах стали намного комфортнее. 6-осный вагон меньше раскачивался, и имел более плавный ход.
Большинство вагонов-ресторанов, выпущенных после 1905 года, также были 6-осными.
В период 1906-1907г.г. было построено небольшое количество 6-осных D-Zug-Wagen_нов. Но более высокая стоимость таких вагонов себя не оправдала, и в дальнейшем, от производства 6-осных пассажирских вагонов решили отказаться.
- Санёк-69
- Повідомлень: 437
- З нами з: 10 лютого 2017, 13:05
- Имя: Александр
- Звідки: Житомир
- Мой типоразмер: НО/ТТ
- Has thanked: 1407 times
- Been thanked: 400 times
Re: Schnellzüge K.P.E.V. (2)
Небольшой обзор ходовой части вагонов скорых поездов Пруссии
Первые конструкции 4-осных спальных вагонов KPEV оснащалась 2-осными тележками из кованых элементов. Из-за характерного внешнего вида боковых рам (имевших сходство с архитектурными элементами того времени), тележки получили название "Фахверковые":
Следующим этапом в развитии ходовой части немецких вагонов, стало появление штампованных тележек.
В 1890 году, по заказу администрации KPEV, разработкой новых моделей занялась компания Friedrich Krupp AG. Новые образцы штампованных тележек появились в конце 1891 года на первых прототипах пассажирских D-Zug-Wagen_нов. После показа в 1893 году на Всемирной выставке в Чикаго, эти тележки стали называться "Чикагскими":
в дальнейшем "Чикагские" тележки получили систему тройного подвешивания:
в 1895 году, с целью повышения прочности, изменилась форма боковых рам:
в таком виде они получили новое название "Preußische Regelbauart" ("Прусский стандартный дизайн", упрощенно - "Прусский стандарт"):
С начала 1900-х отдельные модели багажных вагонов комплектовались упрощенным вариантом тележек "Прусский стандарт" с двойным подвешиванием, более массово этими тележками комплектовались багажные вагоны поздних выпусков:
3-осные тележки также начинали свой путь с кованых конструкций:
позднее, самым распространенным типом 3-осных тележек стал "Прусский стандарт":
Самый поздний вариант, дорогих и конструктивно сложных 3-осных тележек (т.н. "гусиная шея"), присутствовал только у спальников и вагонов-ресторанов:
в общих чертах эти тележки имели сходство с конструкцией Pullman (в связи с чем, иногда упоминаются как "американские"):
а название "гусиная шея" они унаследовали от своих 2-осных предшественниц, выпускавшихся с 1908 года:
эти тележки также обязаны своим появлением американскому прототипу, выпущенному железнодорожной компанией Pennsylvania Railroad.
Характерная изогнутая форма продольных балансиров и послужила причиной того, что данный тип тележек получил название "гусиная шея" (иногда ещё упоминаются как "американские", "Пенсильванские", или "Тип Пенсильвания").
Первые конструкции 4-осных спальных вагонов KPEV оснащалась 2-осными тележками из кованых элементов. Из-за характерного внешнего вида боковых рам (имевших сходство с архитектурными элементами того времени), тележки получили название "Фахверковые":
Следующим этапом в развитии ходовой части немецких вагонов, стало появление штампованных тележек.
В 1890 году, по заказу администрации KPEV, разработкой новых моделей занялась компания Friedrich Krupp AG. Новые образцы штампованных тележек появились в конце 1891 года на первых прототипах пассажирских D-Zug-Wagen_нов. После показа в 1893 году на Всемирной выставке в Чикаго, эти тележки стали называться "Чикагскими":
в дальнейшем "Чикагские" тележки получили систему тройного подвешивания:
в 1895 году, с целью повышения прочности, изменилась форма боковых рам:
в таком виде они получили новое название "Preußische Regelbauart" ("Прусский стандартный дизайн", упрощенно - "Прусский стандарт"):
С начала 1900-х отдельные модели багажных вагонов комплектовались упрощенным вариантом тележек "Прусский стандарт" с двойным подвешиванием, более массово этими тележками комплектовались багажные вагоны поздних выпусков:
3-осные тележки также начинали свой путь с кованых конструкций:
позднее, самым распространенным типом 3-осных тележек стал "Прусский стандарт":
Самый поздний вариант, дорогих и конструктивно сложных 3-осных тележек (т.н. "гусиная шея"), присутствовал только у спальников и вагонов-ресторанов:
в общих чертах эти тележки имели сходство с конструкцией Pullman (в связи с чем, иногда упоминаются как "американские"):
а название "гусиная шея" они унаследовали от своих 2-осных предшественниц, выпускавшихся с 1908 года:
эти тележки также обязаны своим появлением американскому прототипу, выпущенному железнодорожной компанией Pennsylvania Railroad.
Характерная изогнутая форма продольных балансиров и послужила причиной того, что данный тип тележек получил название "гусиная шея" (иногда ещё упоминаются как "американские", "Пенсильванские", или "Тип Пенсильвания").
- Санёк-69
- Повідомлень: 437
- З нами з: 10 лютого 2017, 13:05
- Имя: Александр
- Звідки: Житомир
- Мой типоразмер: НО/ТТ
- Has thanked: 1407 times
- Been thanked: 400 times
Fleischmann 580904
В новинках на 2009 год Фляйш анонсировал выпуск новой серии прусских вагонов. Насколько понял, в продажу эти модели поступили только в 2010-м. В дальнейшем, серия была продолжена в 2014/2015 годах, и включала новые модели спальных вагонов.
Спальный вагон - Fleischmann 580904
- в отличие от ранее выпускавшихся прусских вагонов (в наборах 1885/4885 и 1898/4898), у спальника новая рама с имитацией заклёпок, и 3-осные тележки:
С фото интерьеров не сложилось. Ни на одном из этих вагонов не получилось снять крышу, пластик очень жесткий, и прилагать слишком большое усилие побоялся.
Спальный вагон - Fleischmann 580904
- в отличие от ранее выпускавшихся прусских вагонов (в наборах 1885/4885 и 1898/4898), у спальника новая рама с имитацией заклёпок, и 3-осные тележки:
С фото интерьеров не сложилось. Ни на одном из этих вагонов не получилось снять крышу, пластик очень жесткий, и прилагать слишком большое усилие побоялся.
- Санёк-69
- Повідомлень: 437
- З нами з: 10 лютого 2017, 13:05
- Имя: Александр
- Звідки: Житомир
- Мой типоразмер: НО/ТТ
- Has thanked: 1407 times
- Been thanked: 400 times
Fleischmann 580901
Ещё одна новинка: пассажирский вагон 1-2 класса (Fleischmann 580901)
- в отличие от ранее выпускавшихся пассажирских вагонов, имеет другое кол-во/расположение оконных проёмов, новую раму с имитацией заклёпок, и 3-осные тележки, внешнее оформление по образцу после 1910 года (когда классы купе стали указываться арабскими цифрами):
- в отличие от ранее выпускавшихся пассажирских вагонов, имеет другое кол-во/расположение оконных проёмов, новую раму с имитацией заклёпок, и 3-осные тележки, внешнее оформление по образцу после 1910 года (когда классы купе стали указываться арабскими цифрами):
- Санёк-69
- Повідомлень: 437
- З нами з: 10 лютого 2017, 13:05
- Имя: Александр
- Звідки: Житомир
- Мой типоразмер: НО/ТТ
- Has thanked: 1407 times
- Been thanked: 400 times
Fleischmann 580903
Пассажирский вагон 3-го класса (Fleischmann 580903)
- в общем по конструктиву аналогичен раннее выпускавшимся вагоном 3-го класса, отличается внешним оформлением по образцу после 1910 года, и небольшими изменениями в хвостовой части (сложенный сильфон, и сигнальные таблички для обозначения хвоста поезда):
- в общем по конструктиву аналогичен раннее выпускавшимся вагоном 3-го класса, отличается внешним оформлением по образцу после 1910 года, и небольшими изменениями в хвостовой части (сложенный сильфон, и сигнальные таблички для обозначения хвоста поезда):
- Санёк-69
- Повідомлень: 437
- З нами з: 10 лютого 2017, 13:05
- Имя: Александр
- Звідки: Житомир
- Мой типоразмер: НО/ТТ
- Has thanked: 1407 times
- Been thanked: 400 times
Fleischmann 580902
Вагон-ресторан Fleischmann 580902
- в общем по конструктиву аналогичен раннее выпускавшимся вагонам-ресторанам, отличается новыми 3-осными тележками:
- в общем по конструктиву аналогичен раннее выпускавшимся вагонам-ресторанам, отличается новыми 3-осными тележками:
- Санёк-69
- Повідомлень: 437
- З нами з: 10 лютого 2017, 13:05
- Имя: Александр
- Звідки: Житомир
- Мой типоразмер: НО/ТТ
- Has thanked: 1407 times
- Been thanked: 400 times
Re: Schnellzüge K.P.E.V. (2)
Т.к. в новой серии нет багажного вагона, дополнил состав моделью Fleischmann 5880 (из наборов 1898/4898):
К сожалению, при пересылке модель пострадала. Но благодаря камрадской помощи
железнодорожных мастерских Stinky, вагон был восстановлен до первозданного вида. Честно говоря, просто поражен хирургической точностью проведённых операций (и не только на этом вагоне), - никаких следов ремонта вообще не заметно.
Данный вагон оптимально подходит к составу по датам ревизии, разве что, нужно будет что-то решить с маршрутными табличками.
В описании аналогичного вагона из предыдущей темы нет фото интерьера, т.к. не удалось снять с него крышу, а на этом экземпляре получилось:
Также в состав добавлен почтовый вагон Fleischmann 5884 (подробнее почтовые вагоны описаны в предыдущей теме):
Все вагоны штатно укомплектованы сцепками Fleischmann 6515:
И в общем получился вот такой симпатичный состав:
В дальнейшем планирую дополнить состав ещё одним 2-осным спальным вагоном Fleischmann 515602
К сожалению, при пересылке модель пострадала. Но благодаря камрадской помощи
железнодорожных мастерских Stinky, вагон был восстановлен до первозданного вида. Честно говоря, просто поражен хирургической точностью проведённых операций (и не только на этом вагоне), - никаких следов ремонта вообще не заметно.
Данный вагон оптимально подходит к составу по датам ревизии, разве что, нужно будет что-то решить с маршрутными табличками.
В описании аналогичного вагона из предыдущей темы нет фото интерьера, т.к. не удалось снять с него крышу, а на этом экземпляре получилось:
Также в состав добавлен почтовый вагон Fleischmann 5884 (подробнее почтовые вагоны описаны в предыдущей теме):
Все вагоны штатно укомплектованы сцепками Fleischmann 6515:
И в общем получился вот такой симпатичный состав:
В дальнейшем планирую дополнить состав ещё одним 2-осным спальным вагоном Fleischmann 515602
- Санёк-69
- Повідомлень: 437
- З нами з: 10 лютого 2017, 13:05
- Имя: Александр
- Звідки: Житомир
- Мой типоразмер: НО/ТТ
- Has thanked: 1407 times
- Been thanked: 400 times
Fleischmann 515305 / 515306 / 515602
В 2014 году новая серия дополнилась ещё тремя моделями
2-осный пассажирский вагон 3-го класса Fleischmann 515305 по маршруту: Berlin-Alexandrowo
2-осный пассажирский вагон 3-го класса Fleischmann 515306 по маршруту: Berlin-Danzig
2-осный спальный вагон Fleischmann 515602 по маршруту: Berlin-Warschau
2-осный пассажирский вагон 3-го класса Fleischmann 515305 по маршруту: Berlin-Alexandrowo
2-осный пассажирский вагон 3-го класса Fleischmann 515306 по маршруту: Berlin-Danzig
2-осный спальный вагон Fleischmann 515602 по маршруту: Berlin-Warschau
- Санёк-69
- Повідомлень: 437
- З нами з: 10 лютого 2017, 13:05
- Имя: Александр
- Звідки: Житомир
- Мой типоразмер: НО/ТТ
- Has thanked: 1407 times
- Been thanked: 400 times
Fleischmann 515103 / 515307 / 515308
В 2015 году в новой серии вышли ещё три вагона, следующие по маршруту: Berlin-Danzig
3-осный пассажирский вагон 1-2-го класса Fleischmann 515103:
2-осный пассажирский вагон 3-го класса Fleischmann 515307:
2-осный пассажирский вагон 3-го класса Fleischmann 515308:
3-осный пассажирский вагон 1-2-го класса Fleischmann 515103:
2-осный пассажирский вагон 3-го класса Fleischmann 515307:
2-осный пассажирский вагон 3-го класса Fleischmann 515308:
- Санёк-69
- Повідомлень: 437
- З нами з: 10 лютого 2017, 13:05
- Имя: Александр
- Звідки: Житомир
- Мой типоразмер: НО/ТТ
- Has thanked: 1407 times
- Been thanked: 400 times
Re: Schnellzüge K.P.E.V. (2)
В общем, по маршрутам всех моделей 2010-2015, получается такая картина:
Berlin-Landsberg-Kreuz-Schneidemühl-Bromberg-Thorn-Warschau-Alexandrowo
Berlin-Landsberg-Kreuz-Schneidemühl-Bromberg-Thorn-Warschau
Berlin-Landsberg-Kreuz-Schneidemühl-Danzig
По датам ревизии все вагоны хорошо сочетаются между собой, и в идеале можно было бы собрать большой состав из 10-ти вагонов, на маршруте Берлин-Шнайдемюль.
Далее состав разделится:
- 4-е вагона поедут в Гданьск
- остальные продолжат свой путь до Варшавы
Но тут будет неувязка по номерам вагонов в составе, т.к. вагон 3-го класса (Fleischmann 580903 из первого выпуска) пересечётся по номеру с 2-осным спальником (Fleischmann 515602 из второго выпуска), - оба этих вагона с номером "5" на табличках:
Можно собрать два состава: один по маршруту Берлин-Гданьск, второй до Варшавы.
Но тогда маршрут до Гданьска останется без ресторана, и к обоим составам придётся искать багажные вагоны.
Berlin-Landsberg-Kreuz-Schneidemühl-Bromberg-Thorn-Warschau-Alexandrowo
Berlin-Landsberg-Kreuz-Schneidemühl-Bromberg-Thorn-Warschau
Berlin-Landsberg-Kreuz-Schneidemühl-Danzig
По датам ревизии все вагоны хорошо сочетаются между собой, и в идеале можно было бы собрать большой состав из 10-ти вагонов, на маршруте Берлин-Шнайдемюль.
Далее состав разделится:
- 4-е вагона поедут в Гданьск
- остальные продолжат свой путь до Варшавы
Но тут будет неувязка по номерам вагонов в составе, т.к. вагон 3-го класса (Fleischmann 580903 из первого выпуска) пересечётся по номеру с 2-осным спальником (Fleischmann 515602 из второго выпуска), - оба этих вагона с номером "5" на табличках:
Можно собрать два состава: один по маршруту Берлин-Гданьск, второй до Варшавы.
Но тогда маршрут до Гданьска останется без ресторана, и к обоим составам придётся искать багажные вагоны.
- Санёк-69
- Повідомлень: 437
- З нами з: 10 лютого 2017, 13:05
- Имя: Александр
- Звідки: Житомир
- Мой типоразмер: НО/ТТ
- Has thanked: 1407 times
- Been thanked: 400 times
Gepäckwagen K.P.E.V.
А у Фляйша с багажными вагонами не густо, и все они (по надписям на маршрутных табличках) привязаны к определённым наборам. В основном, это самый массовый вариант багажного вагона 1-й эпохи с 1902 года (представлен во всех наборах предыдущей серии, описанной в первой теме).
И ещё одна модель раннего варианта (Fleischmann 5800), выпущенная в 1983 году к набору пассажирских 4-осных каретников:
В общем-то, выбор багажных вагонов для скорых поездов 1-й эпохи действительно невелик, но кое-что интересное всё же было.
На первом этапе, в составах скорых поездов ходили 3-осные багажные вагоны, так же использовавшиеся и на обычных пассажирских маршрутах.
С появлением первых моделей пассажирских D-Zug-Wagen_нов, начался параллельный выпуск комбинированных багажно-почтовых 4-осных вагонов
несколько вариантов "коротких" версий (длиной 18,59 м, ставшей в дальнейшем стандартом для 4-осных багажных вагонов 1-й эпохи):
и удлиненная версия (20,5 м):
Так же стоит отметить ещё один экзотический вариант комбинации пассажирского вагона с багажным отсеком:
В 1910 году появились первые багажные вагоны с металлическим каркасом, открывшие новую страницу в истории прусских вагонов. Подробнее об этом уже в следующей теме.
И ещё одна модель раннего варианта (Fleischmann 5800), выпущенная в 1983 году к набору пассажирских 4-осных каретников:
В общем-то, выбор багажных вагонов для скорых поездов 1-й эпохи действительно невелик, но кое-что интересное всё же было.
На первом этапе, в составах скорых поездов ходили 3-осные багажные вагоны, так же использовавшиеся и на обычных пассажирских маршрутах.
С появлением первых моделей пассажирских D-Zug-Wagen_нов, начался параллельный выпуск комбинированных багажно-почтовых 4-осных вагонов
несколько вариантов "коротких" версий (длиной 18,59 м, ставшей в дальнейшем стандартом для 4-осных багажных вагонов 1-й эпохи):
и удлиненная версия (20,5 м):
Так же стоит отметить ещё один экзотический вариант комбинации пассажирского вагона с багажным отсеком:
В 1910 году появились первые багажные вагоны с металлическим каркасом, открывшие новую страницу в истории прусских вагонов. Подробнее об этом уже в следующей теме.
- Stinky
- Супермодератор
- Повідомлень: 6346
- З нами з: 16 травня 2015, 01:19
- Имя: Дионисий
- Звідки: Kiew
- Мой типоразмер: Н0
- Has thanked: 1541 times
- Been thanked: 3328 times
- Контактна інформація:
Re: Schnellzüge K.P.E.V. (2)
Ух!
Спасибо за ваш труд!Читал с упоением.Отдельно благодарю за кучу познавательных картинок,
так грамотно подобранных.Очень понравились чертежи трехосных вагонов с диагональным
тамбуром и центральной дверью.Весьма интересно сделали.Также стало откровением что
надрессорные балки и шкворневые узлы исполнены в древесине.
Да,армированы металлом,
но все же...По моделям от Фляйша мне кажется они были бы еще сочнее на спицованных колпарах.
Спасибо за ваш труд!Читал с упоением.Отдельно благодарю за кучу познавательных картинок,
так грамотно подобранных.Очень понравились чертежи трехосных вагонов с диагональным
тамбуром и центральной дверью.Весьма интересно сделали.Также стало откровением что
надрессорные балки и шкворневые узлы исполнены в древесине.
но все же...По моделям от Фляйша мне кажется они были бы еще сочнее на спицованных колпарах.

- Санёк-69
- Повідомлень: 437
- З нами з: 10 лютого 2017, 13:05
- Имя: Александр
- Звідки: Житомир
- Мой типоразмер: НО/ТТ
- Has thanked: 1407 times
- Been thanked: 400 times
Re: Schnellzüge K.P.E.V. (2)
Спасибо!
Согласен на все 100%. Со временем заменю все колпары спицованными.Stinky писав:По моделям от Фляйша мне кажется они были бы еще сочнее на спицованных колпарах.
- youdmit
- Повідомлень: 3375
- З нами з: 30 липня 2015, 01:48
- Имя: ЮрСанич
- Звідки: Київ
- Мой типоразмер: H0, H0e
- Has thanked: 2155 times
- Been thanked: 4245 times
Re: Schnellzüge K.P.E.V. (2)
Великолепный обзор!
Александр, спасибо!
Александр, спасибо!
Я сотый раз, опять начну сначала... (А.Макаревич)
- Санёк-69
- Повідомлень: 437
- З нами з: 10 лютого 2017, 13:05
- Имя: Александр
- Звідки: Житомир
- Мой типоразмер: НО/ТТ
- Has thanked: 1407 times
- Been thanked: 400 times
Re: Schnellzüge K.P.E.V. (2)
Всем спасибо за интерес к теме!
Пока вряд ли. Так далеко ещё не добрался, в 1-й эпохе застрял.T-1000 писав:…а про рейнгольдци будет статья?
- Muton
- Повідомлень: 4021
- З нами з: 11 травня 2015, 23:12
- Имя: Вітя
- Звідки: Київ
- Мой типоразмер: НО
- Has thanked: 1145 times
- Been thanked: 1273 times
Re: Schnellzüge K.P.E.V. (2)
Шикарный обзор, прочитал с удовольствием, как и первую часть. Огромное Вам спасибо за потраченное время!